ID CP2532304

Apartamente Premium de vanzare - 3 camere, Andrei Muresanu

ID CP2532304

315,460 € + 21% TVA

Apartament cu 3 camere de vânzare
Andrei Muresanu, Cluj-Napoca
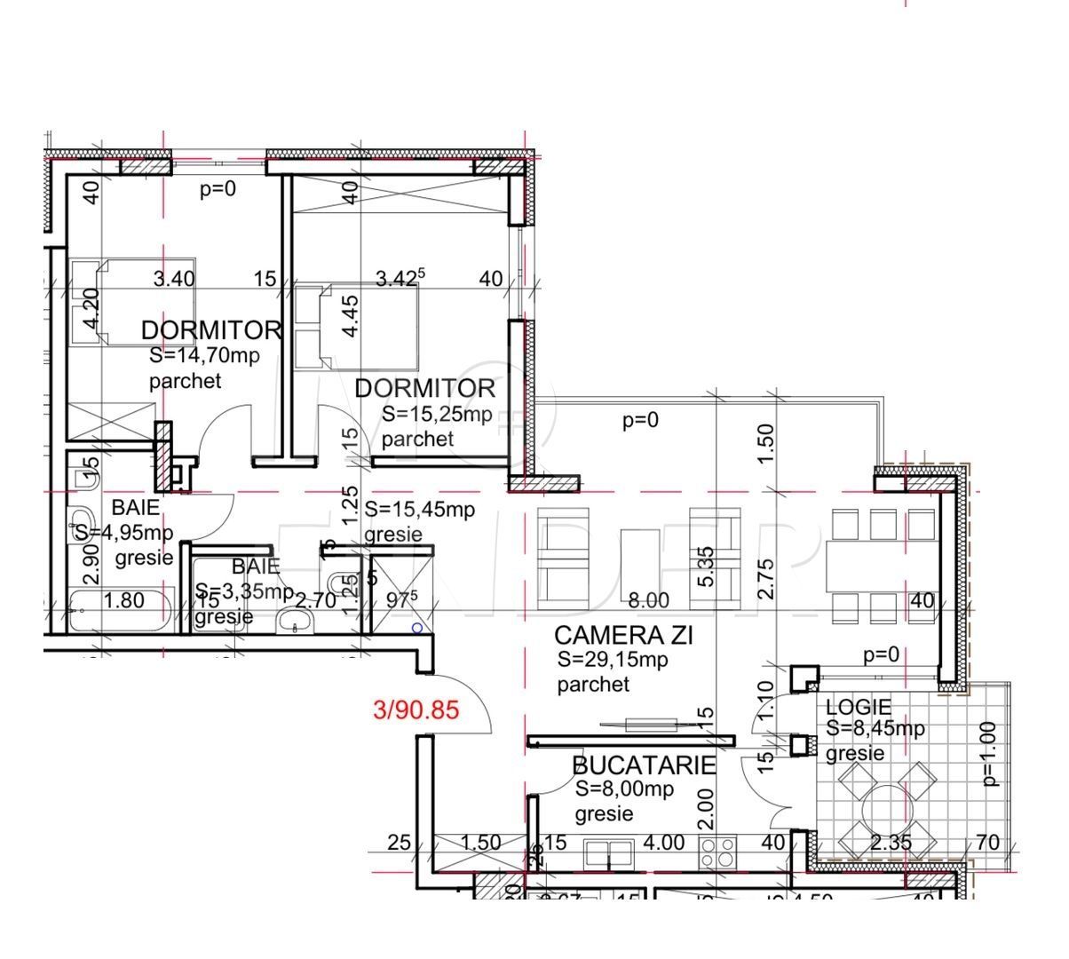
91.9 mp
2025

IMOFINDER va propune spre vanzare DIRECT DEZVOLTATOR- FARA COMISION - apartamente noi spațioase și bine compartimentate cu 2 și 3 camere, situate intr-un imobil nou in curs de constructie, localizat situat într-o zonă de top a municipiului Cluj-Napoca, cartierul Andrei Muresanu. Apartamentele de 3 camere au suprafete de la 74 mp pana la 92 mp, iar preturile sunt intre 245.500 euro si 306.000 euro fara T.V.A. Înălțime interioară 2.7 m, spaţioase şi luminoase, apartamentele beneficiază de dotări premium, precum încălzire prin pardoseală, centrala termica - Hoval, termostat pentru reglarea temperaturii , uşi antiefractie, tamplarie marca Rehau 7 camere 3 sticle, lift , balustrazi balcoane din sticlă.

Zonă de top – acces facil la puncte de interes, transport public, școli, centre comerciale și spații verzi

Parcare subterană și supraterană – locuri de parcare disponibile pentru confort maxim

Spații verzi și loc de joacă – un mediu relaxant și prietenos.

Parcare subterana 20.000 euro + tva

Modalitate de plata : 40 % antecontract - 30 % - Rosu - 30 % finalizare

Dacă ești în căutarea unui apartament modern, bine poziționat și cu multiple beneficii, acest ansamblu rezidențial exclusivist îți oferă apartamente spațioase, compartimentări inteligente și finisaje de calitate superioară, toate într-o zonă de top a orașului

Citește mai mult

  • Tip apartament
    Apartament
  • Compartimentare
    Semidecomandat
  • Număr camere
    3
  • Număr bucătării
    1
  • Număr băi
    2
  • Etaj
    4
  • Suprafață utilă
    91.9 mp
  • Suprafață construită
    99 mp
  • Suprafață terasă
    8.45 mp
  • Confort
    Lux
  • Stare interior
    Semifinisat
  • Număr balcoane
    1
  • Număr garaje
    1
  • Imobil
    Bloc de apart.
  • Stadiu construcție
    În construcție
  • An construcție
    2025
  • Construcție nouă
    Da
  • Tip construcție
    Cărămidă
  • Număr etaje clădire
    7

Facilități

Apă
Apometre
Canalizare
CATV
Centrală imobil
Contor electric
Contor gaz
Curent
Garaj subteran
Gaz
Geamuri tripan
Iluminat stradal
Încălzire prin pardoseală
Internet
Izolație exterioară
Lift
Mijloace de transport în comun
Șapă
Străzi asfaltate
Telefon
Ușă intrare metal
Darius - Radu Cramba - IMOFINDER
Darius - Radu Cramba
General Manager

0722298997


Solicită chiar acum o vizionare
Telefon
Sună acum Solicită vizionare
Necesare:

Site-ul nu poate funcționa corect fără aceste cookie-uri. Vezi cookie-urile

Statistică:

Strângem statistici anonime despre voi, vizitatorii unici, pentru a vă îmbunătăți experiența dumneavoastră. Vezi cookie-urile

Marketing:

Pentru a ne promova mai eficient serviciile noastre, folosim cookies pentru a vă identifica și a vă oferi proprietăți și servicii personalizate. Vezi cookie-urile

Acest site folosește cookies, află detalii. Alege ce tipuri de cookies dorești să permitem: