ID CP1574841

Vanzare apartament cu CF, Centru, imobil nou

Această proprietate nu mai este activă,
te invităm să vizualizezi proprietăți similare

ID CP1574841

125,000 €

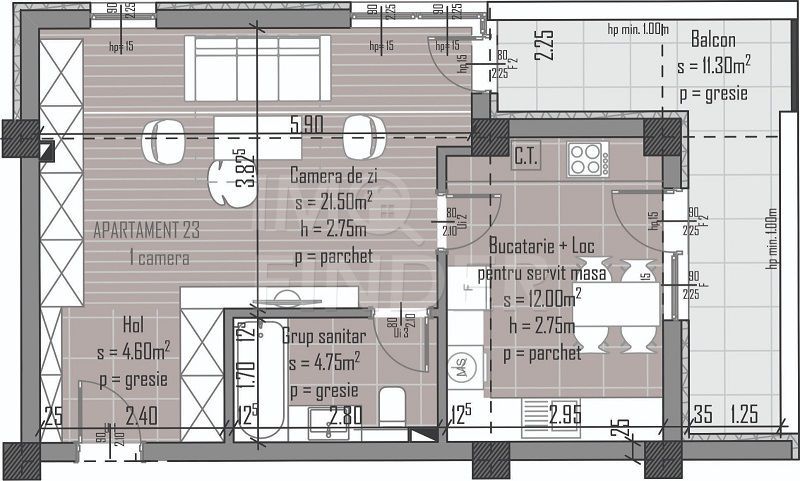
Apartament cu 2 camere de vânzare
Central, Cluj-Napoca
42 mp
2020

IMOFINDER va propune spre vanzare un apartament cu 2 camere intr-un proiect nou zona Centrala, acesta dispune de o arhitectura moderna , avand curte interioara amenasata cu spatii verzi si loc de jaoca pentru copii, spatii comerciale situate la parterul imobilelor sunt destinate unor activitati menite sa ridice confortul viitorilor clienti.

Proiectul se afla in apropierea numeroaselor scoli si gradinite si totodata este bine conectat prin mijloacele de transport in comun aflate in apropiere, precum si alte puncte de interes: Piata Mihai Viteazu.

Apartamentul se preda la stadiu de semifinisat si spatiile comune vor fi finisate modern..Exista posibilitatea achizitionarii unui loc de parcare subteran separat ca si pret.

Citește mai mult

  • Tip apartament
    Apartament
  • Compartimentare
    Semidecomandat
  • Număr camere
    2
  • Număr bucătării
    1
  • Număr băi
    1
  • Etaj
    1
  • Suprafață utilă
    42 mp
  • Suprafață construită
    55 mp
  • Suprafață terasă
    12 mp
  • Disponibilitate
    Imediat
  • Orientare
    Est
  • Confort
    1
  • Stare interior
    Semifinisat
  • Număr balcoane
    1
  • Număr garaje
    1
  • Imobil
    Bloc de apart.
  • Stadiu construcție
    Finalizată
  • An construcție
    2020
  • Construcție nouă
    Da
  • Tip construcție
    Cărămidă
  • Număr etaje clădire
    5
  • Număr etaje retrase
    1

Facilități

Apă
Apometre
Calorifere
Canalizare
CATV
Centrală proprie
Contor electric
Contor gaz
Curent
Curte comună
Ferestre PVC
Gaz
Iluminat stradal
Internet
Izolație exterioară
Mijloace de transport în comun
Străzi asfaltate
Telefon
Ușă intrare metal
Uși interior celulare
Necesare:

Site-ul nu poate funcționa corect fără aceste cookie-uri. Vezi cookie-urile

Statistică:

Strângem statistici anonime despre voi, vizitatorii unici, pentru a vă îmbunătăți experiența dumneavoastră. Vezi cookie-urile

Marketing:

Pentru a ne promova mai eficient serviciile noastre, folosim cookies pentru a vă identifica și a vă oferi proprietăți și servicii personalizate. Vezi cookie-urile

Acest site folosește cookies, află detalii. Alege ce tipuri de cookies dorești să permitem: